Nowoczesne 2-pokojowe mieszkanie z balkonem
Cena w ogłoszeniu dotyczy mieszkania dwupokojowego na drugim piętrze budynku:…
$516,115
mazowieckie, Pruszków, Pruszków
sprzedaż
$758,000














Bezpośrednio sprzedam 3-pokojowe mieszkanie 67,4 m² położone na 3 (ostatnim) piętrze w kameralnym budynku z cegły z 2001 roku, przy ul. Jasnej 10 w Pruszkowie.
Mieszkanie jest dwustronne (wschód–zachód), bardzo jasne, z dużym balkonem 7,8 m² i widokiem na otwartą przestrzeń (brak zabudowy naprzeciw).
Gotowe do wprowadzenia – z w pełni wyposażoną, oddzielną kuchnią (AGD w cenie).
Najważniejsze atuty
budynek z cegły (2001 r.) – solidne, "nowe" budownictwo
ostatnie piętro – cisza, prywatność, więcej światła
mieszkanie dwustronne (Wsch–Zach)
duży balkon 7,8 m² z otwartym widokiem
oddzielna, widna kuchnia z wyposażeniem
łazienka + osobne WC
duża piwnica 8,4 m² + wózkownia
bezpłatne miejsca parkingowe przy budynku
sprzedaż bezpośrednia – bez prowizji
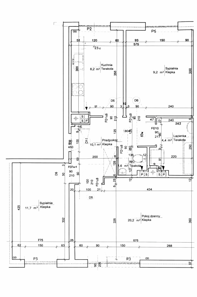
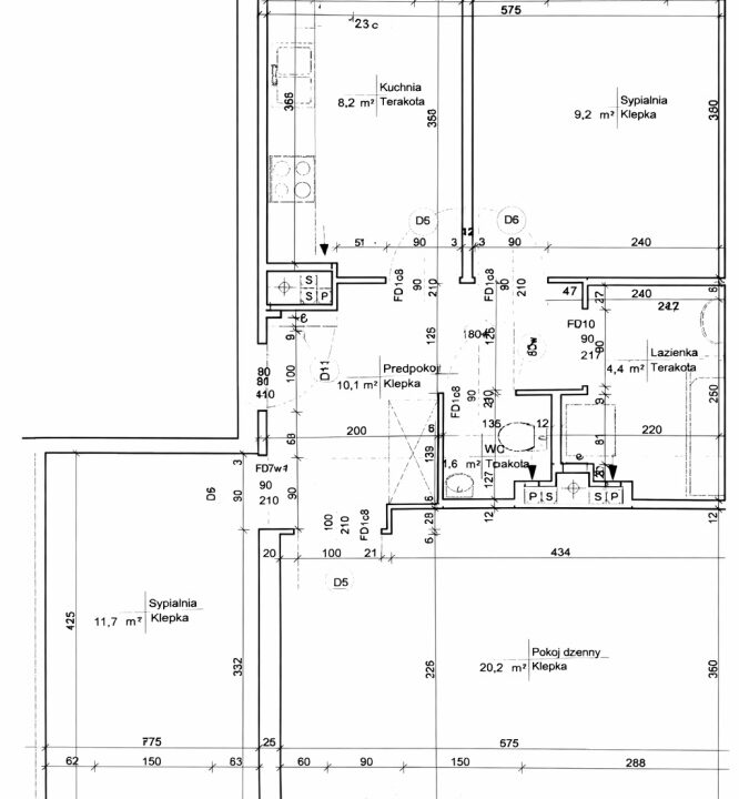
Układ pomieszczeń
Salon – 19 m² (wyjście na balkon)
Sypialnia – 11,2 m²
Sypialnia – 12,6 m²
Kuchnia – 8,5 m² (oddzielna, widna)
Przedpokój – 6,7 m² (duża szafa)
Łazienka – 4,38 m²
WC – 1,4 m²
Dodatkowo: balkon 7,8 m², piwnica 8,4 m²
Stan mieszkania
Mieszkanie zadbane, utrzymane w jasnej kolorystyce, funkcjonalny i ustawny układ.
W cenie pozostaje zabudowa kuchenna ze sprzętem AGD oraz zabudowy stałe.
Budynek i okolica
Kameralny, 3-piętrowy budynek z cegły z 2001 roku, zadbane części wspólne.
W pobliżu tereny Pól Parzniewskich – idealne na spacery, rower i rekreację.
Lokalizacja i infrastruktura
Spokojna okolica z pełną infrastrukturą w zasięgu spaceru:
Kaufland – 150 m (duży atut lokalizacji)
Lidl – 750 m
Biedronka – 900 m
szkoła podstawowa – 350 m
przychodnia – 350 m
przystanek – 450 m / pętla autobusowa – 650 m
place zabaw – 250 m
Dogodny dojazd do Warszawy: PKP/WKD + szybki wyjazd na S8 i A2.
Informacje formalne
pełna własność, księga wieczysta
możliwość szybkiego wydania
Pośrednikom dziękuję.
Zapraszam do kontaktu i obejrzenia mieszkania.
Cena w ogłoszeniu dotyczy mieszkania dwupokojowego na drugim piętrze budynku:…
$516,115
Sprzedam działki budowlane w miejscowości Winnica, ul. Warszawska, gm. Pułtusk…
$118,000
Owning a home is a keystone of wealth… both financial affluence and emotional security.
Suze Orman