lokal komercyjny 56 m², Pabianice, VAT w cenie
Cena: 590 000 zł brutto (zawiera 23% VAT) – do…
$590,000
wielkopolskie, Środa Wielkopolska,
wynajem
$6,200




Oferta bezpośrednia.
Telefon: PL +48 535 086 154
Budynek produkcyjny 360m² | Centrum Środy Wlkp. – 30km od Poznania
KOMPLETNA SIEDZIBA FIRMY
________________________________________
✅ NATYCHMIASTOWY START – budynek w pełni sprawny, gotowy do użytkowania od pierwszego dnia
✅ 360m² FUNKCJONALNEJ POWIERZCHNI – produkcja + biura + zaplecze socjalne
✅ MOC PRZYŁĄCZENIOWA + prąd trójfazowy
✅ WINDA Produkcyjna – łatwy transport materiałów między kondygnacjami
✅ DOSKONAŁA LOKALIZACJA – centrum Środy (<1km), Poznań 30km, droga ekspresowa 4km
✅ WYSOKIE HALE >3m – swoboda w organizacji produkcji, montaż dużych maszyn
✅ DZIAŁKA ~1000m² – parking, plac manewrowy, możliwość rozbudowy
✅ CZYSTA SYTUACJA PRAWNA – pełna własność, zero obciążeń
________________________________________
PARAMETRY OBIEKTU
POWIERZCHNIA:
• Budynek główny: około 360 m² (2 pełne kondygnacje)
• Wiata: 32 m² (dodatkowa przestrzeń magazynowa/warsztatowa)
• Magazyn boczny: 15 m² (zamknięty, zabezpieczony)
• Działka: około 1000 m²
• ŁĄCZNIE: ponad 400 m² przestrzeni użytkowej!
LOKALIZACJA:
• Adres: ul. Paderewskiego 10, 63-000 Środa Wielkopolska
• Centrum Środy: poniżej 1 km
• Poznań: 30 km (25-30 minut jazdy)
• Droga ekspresowa: zjazd 4 km
• Dostęp: brama wjazdowa ~4m szerokości
________________________________________
UKŁAD FUNKCJONALNY – MAKSYMALNA ELASTYCZNOŚĆ
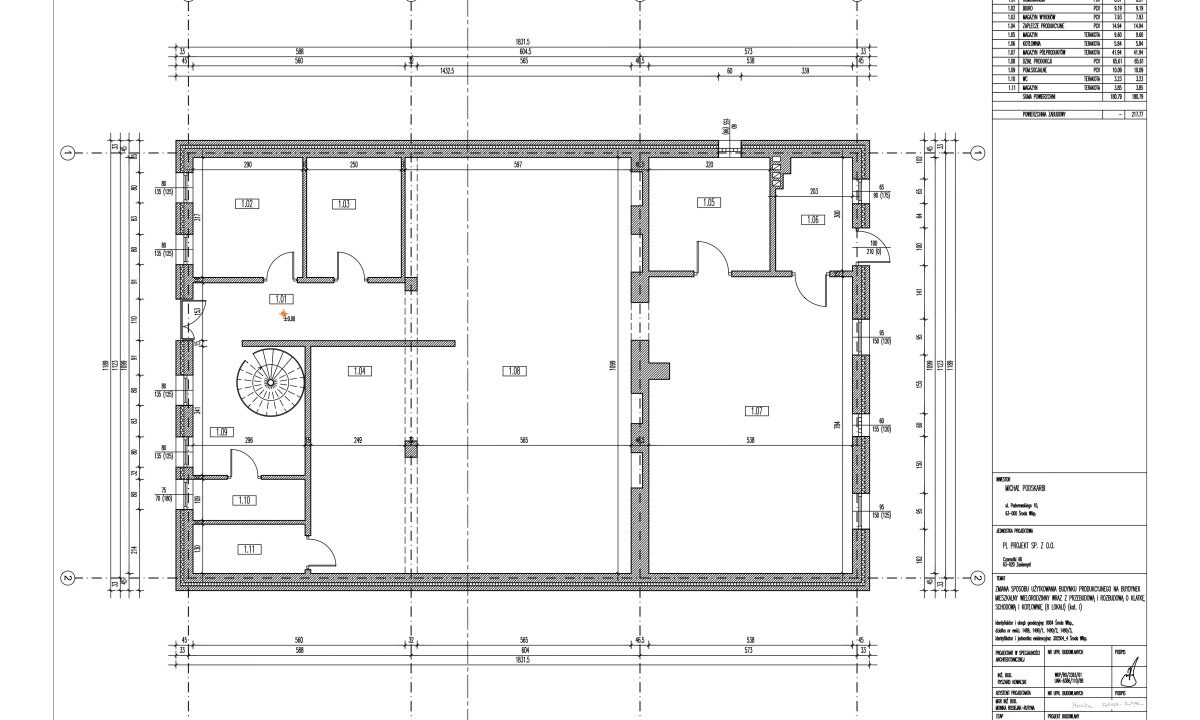
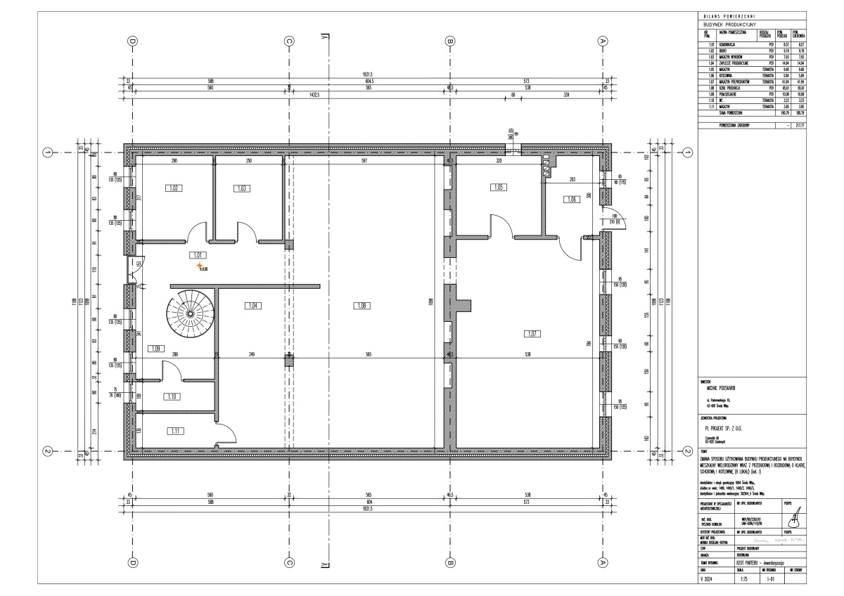
PARTER (180m²) – STREFA PRODUKCYJNA:
HALE PRODUKCYJNE/MAGAZYNOWE PARTER:
• Duża hala: 75 m² | wysokość >3m
• Druga hala: 42 m² | wysokość >3m
ZAPLECZE BIUROWE PARTER:
• Biuro 1: 9 m²
• Biuro 2: 8 m²
POMIESZCZENIA TECHNICZNE:
• Pomieszczenie gospodarcze: 10 m² + 3,5 m²
• Kotłownia: 6 m²
• Toaleta: 3 m²
• Korytarz, klatka schodowa, WINDA
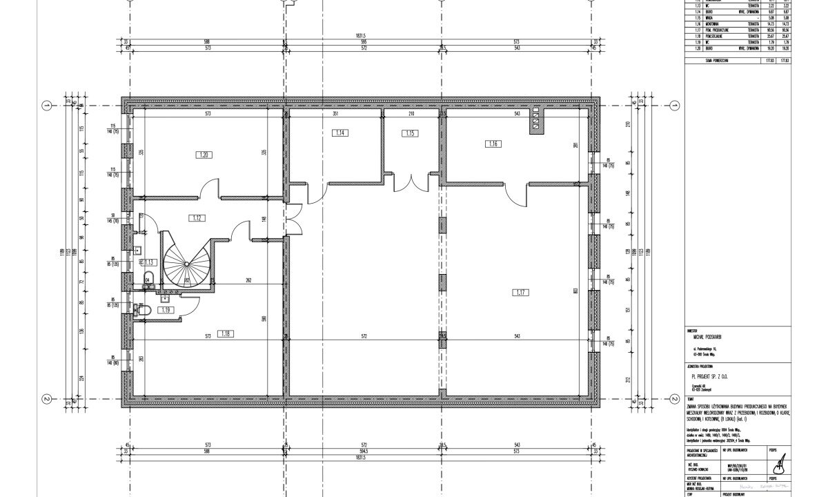
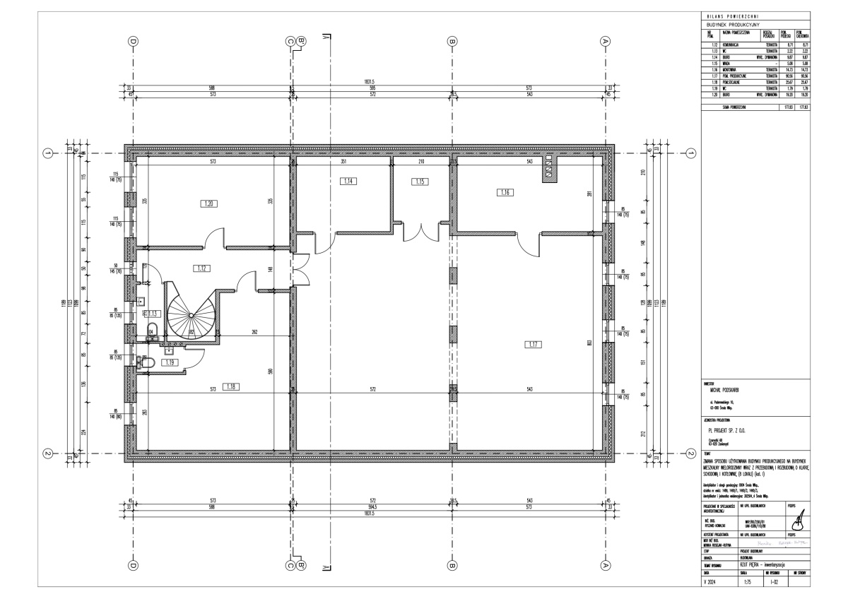
PIĘTRO (180m²) – STREFA BIUROWO-PRODUKCYJNA:
HALE PRODUKCYJNE/MAGAZYNOWE:
• Hala 1: 46 m² z klimatyzacją
• Hala 2: 44 m² z klimatyzacją
ROZBUDOWANE ZAPLECZE BIUROWE:
• Przestronne biuro: 20 m²
• Biuro: 15,5 m² – kierownictwo
• Biuro: 10,5 m² – stanowisko pracy
• Pomieszczenie socjalne: 27 m² – kuchnia, jadalnia dla pracowników
• 2 łazienki: 2,5 m² + 2 m²
• Korytarz, WINDA
________________________________________
MEDIA I INFRASTRUKTURA:
✅ Energia elektryczna:
✅ Woda: przyłącze miejskie standardowe
✅ Kanalizacja: miejska
✅ Internet: światłowód Orange
✅ Ogrzewanie: kocioł na węgiel
________________________________________
IDEALNY OBIEKT DLA:
PRODUKCJA: ✔ Zakłady produkcyjne lekkie i średnie
✔ Montaż, obróbka mechaniczna
✔ Produkcja mebli, stolarstwo
✔ Produkcja opakowań, drukarnia
✔ Warsztat mechaniczny, lakierniczy
✔ Produkcja elementów metalowych, ślusarstwo
USŁUGI: ✔ Centrum serwisowe, naprawa maszyn
✔ Magazyn + biuro firmy logistycznej
✔ Hurtownia z zapleczem biurowym
✔ Zakład rzemieślniczy
✔ Studio produkcji filmowej/fotograficznej
HANDEL + MAGAZYN: ✔ Magazyn wysokiego składowania (wysokość >3m!)
✔ Centrum dystrybucyjne
✔ Showroom + magazyn
________________________________________
STAN TECHNICZNY – SOLIDNA KONSTRUKCJA
HISTORIA:
• 1993 – budowa parteru (konstrukcja murowana + stalowa)
• 1997 – dobudowa piętra
• 2010 – remont zewnętrzny
OCENA ELEMENTÓW:
Element Ocena Status
Konstrukcja nośna 5/5 Doskonały stan
Instalacja elektryczna 4/5 Bardzo dobry stan
Instalacje wod-kan 4/5 Sprawne
Dach 3/5 Papa stan średni ale nie wymaga interwencji w perspektywie 5lat.
Wilgoć/grzyb/korozja 5/5 BRAK – budynek suchy
OGÓLNA OCENA: 3/5 – budynek w pełni sprawny, gotowy do użytkowania.
Budynek nie wymaga pilnych napraw i jest gotowy do natychmiastowego użytkowania.
W dłuższej perspektywie potrzebna inwestycja w ocieplenie budynku oraz wymiany drzwi wejściowych.
Rozumiem, że każda inwestycja i każdy biznes są inne. Jestem elastyczny i otwarty na negocjacje – chętnie wysłucham Twoich potrzeb i znajdziemy rozwiązanie, które będzie satysfakcjonujące dla obu stron.
Cena: 590 000 zł brutto (zawiera 23% VAT) – do…
$590,000
Północ Nieruchomości Końskie przedstawia lokal w sercu woj. Świętokrzyskiego. Wyróżnia…
$5,850,000
Owning a home is a keystone of wealth… both financial affluence and emotional security.
Suze Orman