63m, 3 pokoje, ogródek, bulwary straceńskie
63m, 3 pokoje, ogródek, bulwary straceńskie Nowoczesny apartament przy Bulwarach…
$630,437
małopolskie, Kraków, Podgórze
sprzedaż
$3,880,000





OFERTA SPRZEDAŻY – działka z prawomocnym pozwoleniem na budowę
Na sprzedaż atrakcyjna działka inwestycyjna z prawomocnym pozwoleniem na budowę budynku mieszkalnego wielorodzinnego, zlokalizowana przy ul. Trybuny Ludów 15 w Krakowie – jednej z głównych ulic miasta.
Nieruchomość sprzedawana z kompletną dokumentacją projektową (PAB + PZT i wykonanym zjazdem publicznym), terenem w całości ogrodzonym z bramą wjazdową, co pozwala na natychmiastowe rozpoczęcie inwestycji.
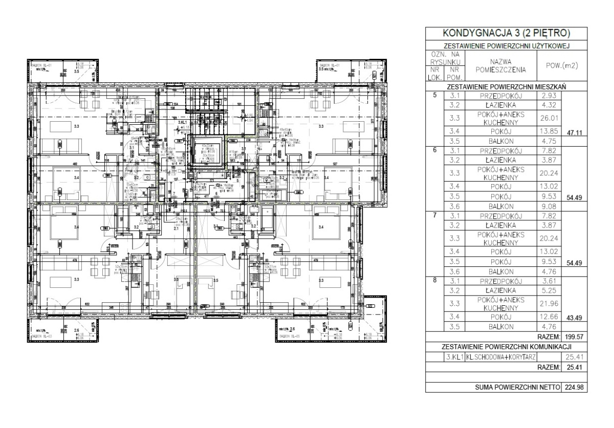
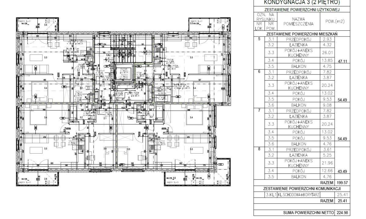
Szczegóły inwestycji: „BUDYNEK MIESZKALNY WIELORODZINNY Z USŁUGAMI NA PARTERZE I JEDNOKONDYGNACYJNYM GARAŻEM PODZIEMNYM”
LOKALIZACJA: Kraków, Wola Duchacka, ul. Trybuny Ludów
DZIAŁKA NR 276/6 obr. 0049 Podgórze, o powierzchni 824 m2
STAN PRAWNY: pozwolenie na budowę wydane – ostateczne, bez obciążeń kredytem
KSZTAŁT DZIAŁKI: regulany – prostokąt
ILOŚĆ KONDYGNACJI: jednokondygnacyjny garaż podziemny, 4 kondygnacje nadziemne
ILOŚĆ PUM: 809,3 m2
ILOŚĆ MIESZKAŃ: 12
POWIERZCHNIA LOKALI MIESZKALNYCH: 599,68 m2
ILOŚĆ LOKALI USŁUGOWYCH: 2
POWIERZCHNIA LOKALI USŁUGOWYCH: 209,62 m2
WINDA: tak (dostosowana do osób z niepełnosprawnościami)
ILOŚĆ MIEJSC POSTOJOWYCH W GARAŻU PODZIEMNYM: 12
ILOŚĆ ZEWNĘTRZNYCH MIEJSC POSTOJOWYCH: 4
DOSTĘP DO DROGI: bezpośredni dostęp do drogi publicznej
MEDIA: woda, kanalizacja sanitarna i deszczowa, energia elektryczna, MPEC, telekomunikacja
DODATKOWE INFORMACJE: wykonany prąd budowlany, wykonany i odebrany zjazd z drogi publicznej na działkę, dodatkowo udział w bocznej działce drogowej 277/3 i 277/4, zaprojektowana infrastruktura komunikacyjna piesza i kołowa
CENA: 3 880 000 zł
KONTAKT:
Oferta od właściciela
tel. 888_068_068, tel. 604_147_500
63m, 3 pokoje, ogródek, bulwary straceńskie Nowoczesny apartament przy Bulwarach…
$630,437
Obiekt produkcyjno-magazynowo-biurowy bezpośrednio przy obwodnicy miasta, doskonała ekspozycja. Obiekt 1800…
$4,968,000
Owning a home is a keystone of wealth… both financial affluence and emotional security.
Suze Orman