Działka budowlana przy obwodnicy Krasnegostawu.
Działka budowlana (z przeznaczeniem również na nieuciążliwą działalność gospodarczą) znajdująca…
$80,000
małopolskie, Kraków, Nowa Huta
sprzedaż
$665,000













Kraków – Czyżyny – ul. Kamionka – 51 m²
OFERTA BEZPOŚREDNIO OD WŁAŚCICIELI (BRAK PROWIZJI)
NAJWAŻNIEJSZE INFORMACJE
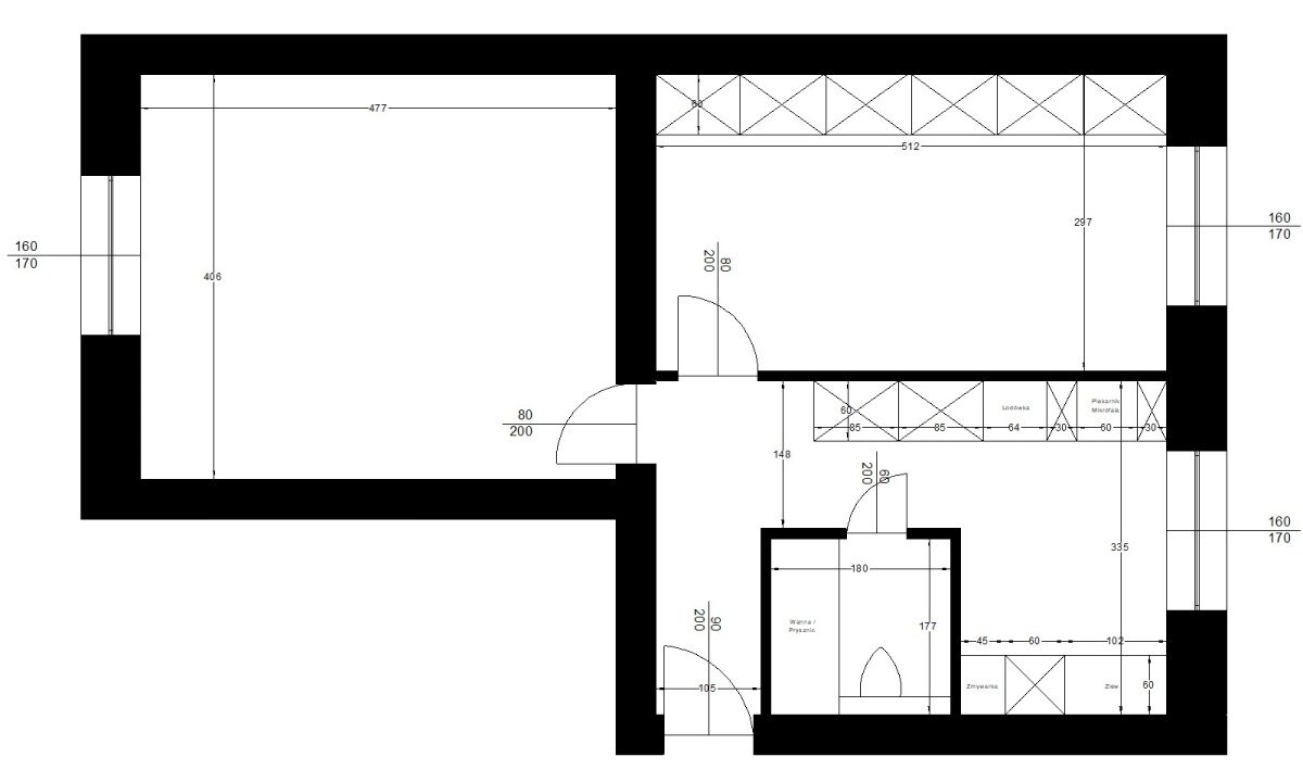
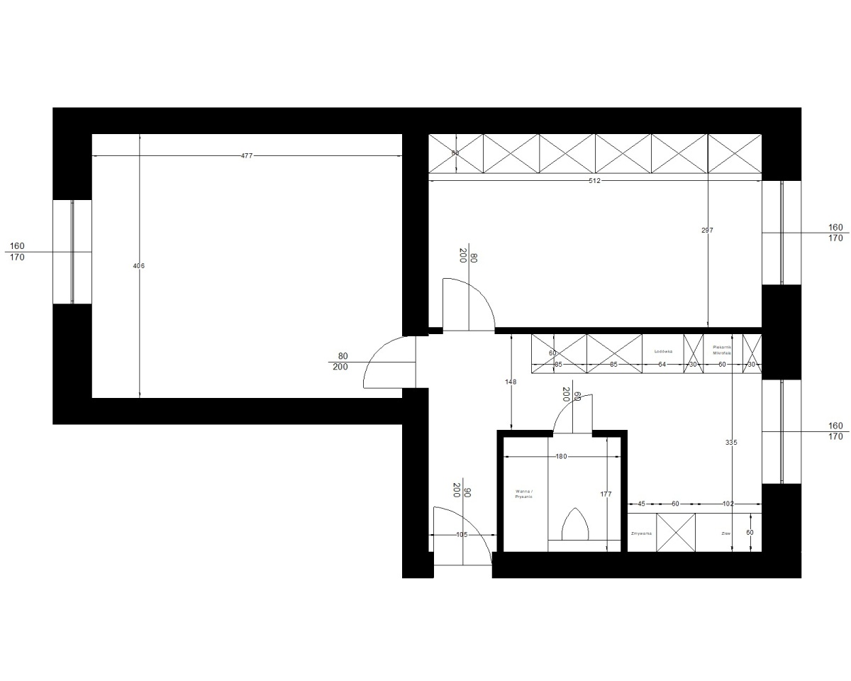
– Powierzchnia mieszkania: 50,52 m²,
– 2 pokoje + osobna kuchnia + łazienka,
– Mieszkanie z pełnym wyposażeniem,
– Wysoki parter w dwupiętrowym bloku,
– Mieszkanie wyposażone w alarm,
– Duża piwnica (7,65 m²),
– Stan mieszkania: po generalnym remoncie w 2018 roku,
– Ogrzewanie: miejskie,
– Czynsz administracyjny: 630 zł (woda, śmieci według zużycia),
– Ogólnodostępny parking na ulicy.
NIERUCHOMOŚĆ
Mieszkanie usytuowane jest na wysokim parterze dwupiętrowego bloku. Nieruchomość po generalnym remoncie w 2018 roku. Wymienione zostały wszystkie instalacje: elektryczna, hydrauliczna, gazowa.
W skład nieruchomości wchodzą:
● salon (19,37 m²),
● sypialnia (15,21 m²),
● kuchnia (6,94 m²) ,
● łazienka z WC i wanną (3,19 m²),
● przedpokój/komunikacja (5,81 m²).
W salonie znajduje się kanapa, biblioteczka oraz szafka RTV. Wszystkie te meble zostały zrobione na wymiar. Na wyróżnienie zasługuje drewniana podłoga oraz ściana z cegłą z czterema miejscami na zdjęcia dużego formatu.
Sypialnia to duże pomieszczenie z ogromną szafą przesuwną, dzięki której jest dużo miejsca do przechowywania. Bez problemu w pokoju zmieści się również biurko. Brakuje łóżka, które trzeba dokupić we własnym zakresie.
Nowoczesna kuchnia jest wyposażona w lodówkę, piekarnik, kuchenkę mikrofalową, płytę gazową oraz zmywarkę. Na uwagę zasługuje poręczne cargo, które pełni funkcję małej spiżarni. Duży blat pod oknem ułatwia przygotowywanie posiłków dla większej liczby gości.
Mała, choć praktycznie urządzona łazienka posiada wannę wraz z parawanem nawannowym oraz pralką. W podłodze zamontowane elektryczne ogrzewanie podłogowe sterowane z panelu dotykowego.
W przedpokoju znajduje się kolejna szafa przesuwna na płaszcze, buty i środki czystości. W szafie znajduje się również dodatkowe miejsce, które można wykorzystać na suszarkę elektryczną.
W przedpokoju oraz kuchni na podłodze położone są wysokiej klasy panele winylowe.
STAN MIESZKANIA:
Mieszkanie w dobrym stanie, wymaga delikatnego odświeżenia. Ogrzewanie z sieci MPEC, a ciepła woda pochodzi z piecyka gazowego umiejscowionego w kuchni. Do mieszkania przynależy piwnica o powierzchni 7,65 m².
STAN BUDYNKU:
Nieruchomość mieści się w budynku z lat 50. XX wieku z zadbaną elewacją. Na poddaszu dostępna jest suszarnia.
LOKALIZACJA:
Osiedle jest kameralne i spokojne z dużą ilością zieleni, a jednocześnie blisko niezbędnej infrastruktury.
Obiekty rekreacyjne:
– Park Woźniców (450m),
– Park Lotników Polskich (1,6 km),
– Wały Wiślane (1,5 km).
Supermarkety:
– Kaufland (500 m),
– Lidl (900 m),
– Biedronka (800 m).
Pozostałe sklepy:
– Designer Outlet Kraków (700 m),
– M1 (700 m),
– Centrum ATUT Galicyjska (1,1 km).
Edukacja:
– Szkoła Podstawowa nr 156 (700 m).
Komunikacja miejska:
– Tramwajowa (1, 14, 22, 62) – przystanek Gałczyńskiego (750 m),
– Autobusowa (174, 178, 183, 578) – przystanek Centralna (450 m).
Inne atrakcje:
– Centrum EXPO (700 m),
– Hala Centralna (750 m),
– Park Trampolin (1,6 km).
Zapraszamy do kontaktu.
Prosimy o nie kontaktowanie się pośredników nieruchomości.
Działka budowlana (z przeznaczeniem również na nieuciążliwą działalność gospodarczą) znajdująca…
$80,000
Sprzedam kompleks 1398 m² – gotowy do biznesu! Cena: 6…
$6,800,000
Owning a home is a keystone of wealth… both financial affluence and emotional security.
Suze Orman