1,56ha DZIAŁKA BUDOWLANA ZE STAWEM 35min od Gdańsk
1,56 ha | DZIAŁKA BUDOWLANA ZE STAWEM ≈ 0,40 ha…
$880,000
małopolskie, Niepołomice,
sprzedaż
$945,000

















Zadbany dom wolnostojący w Woli Batorskiej.
Nieruchomość znajduje się 4 kilometry od Rynku w Niepołomicach.
3,5 km od krzyżówki ul. Brzeskiej z ul. Wola Batorska.
W rejonie krzyżówki : Biedronka, Kaufland, Mc Donalds, Market Mrówka, 3 stacje benzynowe, Media Expert itp.
W odległości do 600 metrów od domu znajdują się : 2 szkoły podstawowe, 2 przedszkola, Klub sportowy z boiskiem KS. Batory, 2 sklepy spożywcze, bar, restauracja, paczkomaty, Dom Kultury, Biblioteka, OSP, Poczta
Przystanek autobusowy : 211 ( Wola Batorska -Żwirownia) oraz Busów – 100 metrów od domu. Dojeżdża do Pleszowa a tam można się przesiąść na tramwaje ;10 lub 21 lub autobusy: 111, 131, 141, 160, 161, 171, 181, 271.
Nieruchomość:
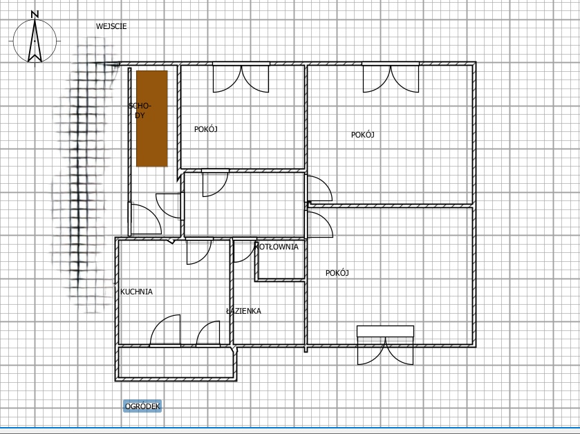
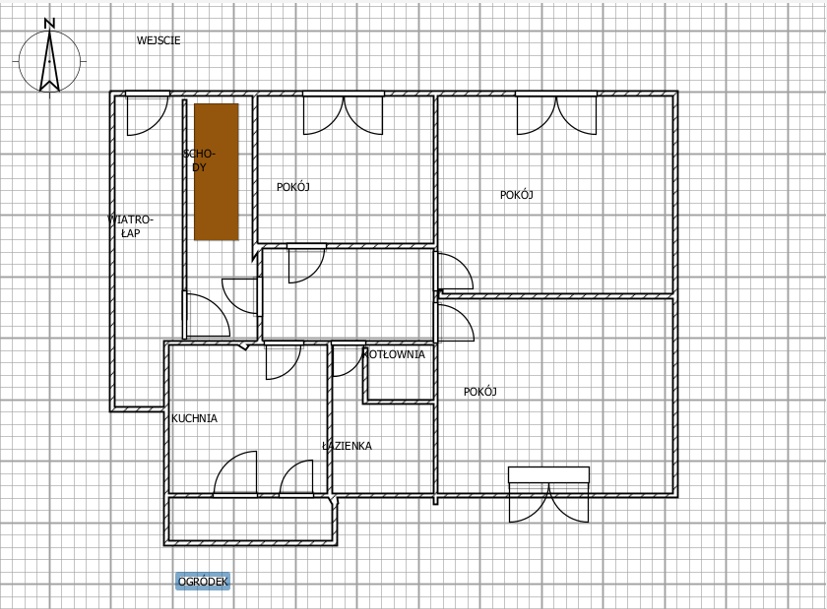
Na kształtnej, płaskiej, ogrodzonej działce o pow. 1 024 m2 na której znajduje się dom o pow. całkowitej ok. 180 m2. Pow. użytkowa 172 m2.
Dom ocieplony ( 10 cm. styropian LAMBDA wsp.31) wykończony tynkiem silikatowym. Dach pokryty dachówką, brama na pilota.
Na pow. dom składa się:
Parter: wiatrołap, 3 pokoje, kuchnia ( z wyjściem do ogrodu ), łazienka, przedpokój oraz mała kotłownia gazowa. Parter do wykończenia -stan deweloperski.
Piętro: 3 pokoje , kuchnia z balkonem, przedpokój, łazienka oraz mała kotłownia gazowa. Piętro zadbane i zamieszkane.
Dom budowany w latach 80 -tych XX w.
Nieruchomość ze względu na swój układ nadaje się dla 2 rodzin ( osobne piece kondensacyjne z zamkniętą kom. spalania) osobne liczniki :gazowe i elektryczne.
Media: woda miejska + studnia własna, internet-światłowód, kanalizacja miejska, prąd oraz siła.
Na posesji znajduje się altana ogrodowa do odpoczynku, dwa garaże blaszaki oraz 2 budynki gospodarcze.
Dojazd drogą wojewódzką, wzdłuż posesji chodnik.
Cena proponowana : 945 000 zł.
Zapraszam na prezentację.
Kontakt:
Dorota Longa
tel.: 536#546#200
Lic.zaw. 5772
Biuro Obrotu Nieruchomościami Optimal Investment Paulina Wojciechowska-Pawlik
ul. Szlak 77/222, 31-153 Kraków
Prezentacja bezpłatna po uprzednim podpisaniu umowy pośrednictwa.
Niniejsze ogłoszenie nie stanowi oferty w rozumieniu przepisów Kodeksu Cywilnego oraz innych właściwych przepisów prawnych, a dane w niej zawarte mają jedynie charakter informacyjny.
Wszelkie dane dotyczące nieruchomości uzyskano na podstawie oświadczeń sprzedających. Zalecamy osobiste zapoznanie się ze stanem nieruchomości przed jej nabyciem.
Nasz doradca kredytowy jest do Państwa dyspozycji
1,56 ha | DZIAŁKA BUDOWLANA ZE STAWEM ≈ 0,40 ha…
$880,000
Piękna działka w super okolicy . Sąsiedztwo terenu przyrodniczo chronionego…
$10,000,000
Owning a home is a keystone of wealth… both financial affluence and emotional security.
Suze Orman