Budynek produkcyjny 360m² | Centrum Środy Wlkp.
Oferta bezpośrednia. Telefon: PL +48 535 086 154 Budynek produkcyjny…
$835,000
mazowieckie, Warszawa, Wola
sprzedaż
$1,188,000





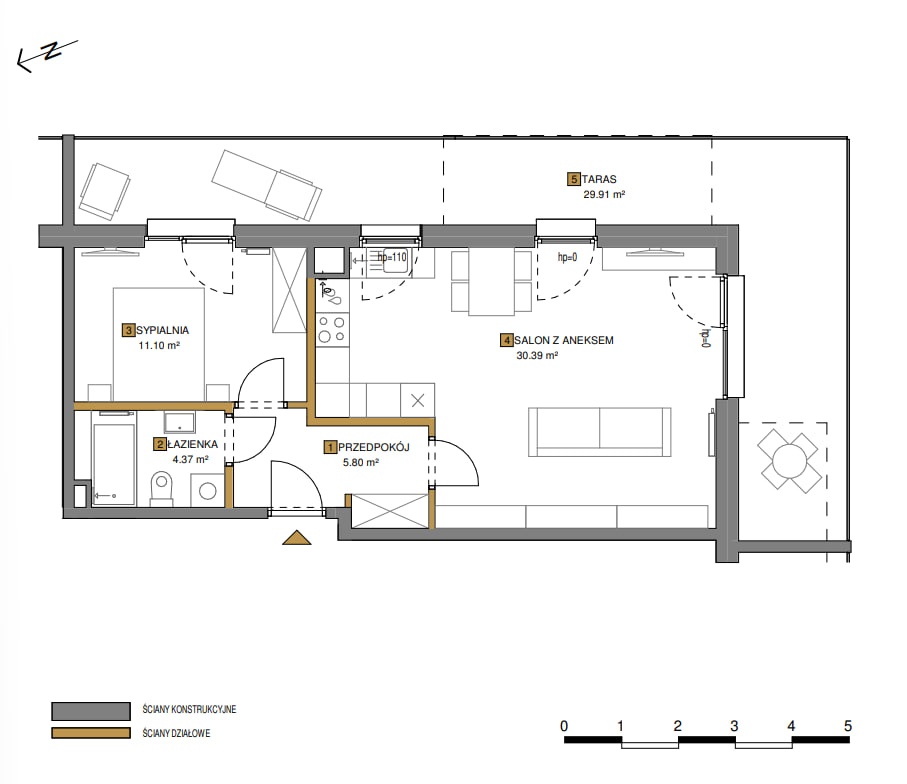
Do sprzedania mieszkanie 2-pokojowe, o powierzchni 51,66 m2. Usytuowane na 5 piętrze w 8 piętrowym budynku. Zlokalizowane przy ul. Kolejowej na Woli.
Do lokalu przynależy balkon o powierzchni 29,91 m2
Mieszkanie stanowi doskonałą propozycję dla osób ceniących sobie komfort i funkcjonalność. W najbliższym otoczeniu znajdziemy pełną infrastrukturę począwszy od lubianych restauracji, poprzez szkoły kończąc na placówkach medycznych (w przypadku dwóch ostatnich zarówno publiczne jak i prywatne). Nieruchomość znajduje się w doskonale skomunikowanej dzielnicy, zaledwie 5 minut spacerem od stacji metra (taki sam spacer dzieli nas od Dworca Zachodniego) oraz przystanków tramwajowych i autobusowych. Dzięki temu łatwo można dotrzeć do każdego zakątka miasta, szybko i sprawnie poruszać się zarówno w obrębie lokalnej społeczności, jak i w centrum. W
Oryginalny projekt i doskonała lokalizacja czynią inwestycję KOLEJ NA 19 wyjątkowym miejscem. Podobnie wyjątkowa jest również jakość wykonania – od doboru materiałów zaczynając, a na funkcjonalności osiedla kończąc. Wielkomiejski styl połączyliśmy tu z pasją do nowoczesnej architektury i w ten sposób stworzyliśmy przemyślaną przestrzeń, do której zawsze będziesz wracać z przyjemnością.
Do lokalu przynależy miejsce parkingowe w garażu podziemnym, dostępne za dodatkową opłatą w wysokości 68 000 zł.
Metro Rondo Daszyńskiego – 8 minut,
Stacja PKP/SKM Warszawa Ochota – 13 minut,
Dworzec Warszawa Zachodnia – 15 minut,
Dworzec Warszawa Centralna – 11 minut,
Trasa S7 – 5 minut,
Lotnisko Chopina – 25 minut.
W okolicy znajdują się sklepy, centra handlowe, biura, kluby fitness oraz pełna infrastruktura usługowa.
Informacje dodatkowe
Wspólnota mieszkaniowa, pełna własność, uregulowany stan prawny gruntu. Zakup z czystą księgo bez obciążeń. Możliwość kredytowania.
Sprzedaż bezpośrednia. NA ŻADNYCH WARUNKACH I POD ŻADNYM POZOREM NIE WSPÓŁPRACUJĘ Z BIURAMI NIERUCHOMOŚCI.
Oferta bezpośrednia. Telefon: PL +48 535 086 154 Budynek produkcyjny…
$835,000
Obiekt produkcyjno-magazynowo-biurowy bezpośrednio przy obwodnicy miasta, doskonała ekspozycja. Obiekt 1800…
$4,968,000
Owning a home is a keystone of wealth… both financial affluence and emotional security.
Suze Orman