2-pokoje, po remoncie, bezczynszowe. Inwestycyjne
Ogłoszenie bezpośrednio od właściciela. Mieszkanie w spokojnej, zielonej okolicy. Niski…
$344,600
świętokrzyskie, Masłów,
sprzedaż
$950,000












Nowoczesna bryła budynku, funkcjonalne i przestronne wnętrza, oraz solidna jakość wykonania zapewniają najwyższy komfort użytkowania dla przyszłych właścicieli.
Inwestycja składa się z 8 budynków mieszkalnych w zabudowie bliźniaczej w Masłowie Pierwszym przy ulicy Foliowej.
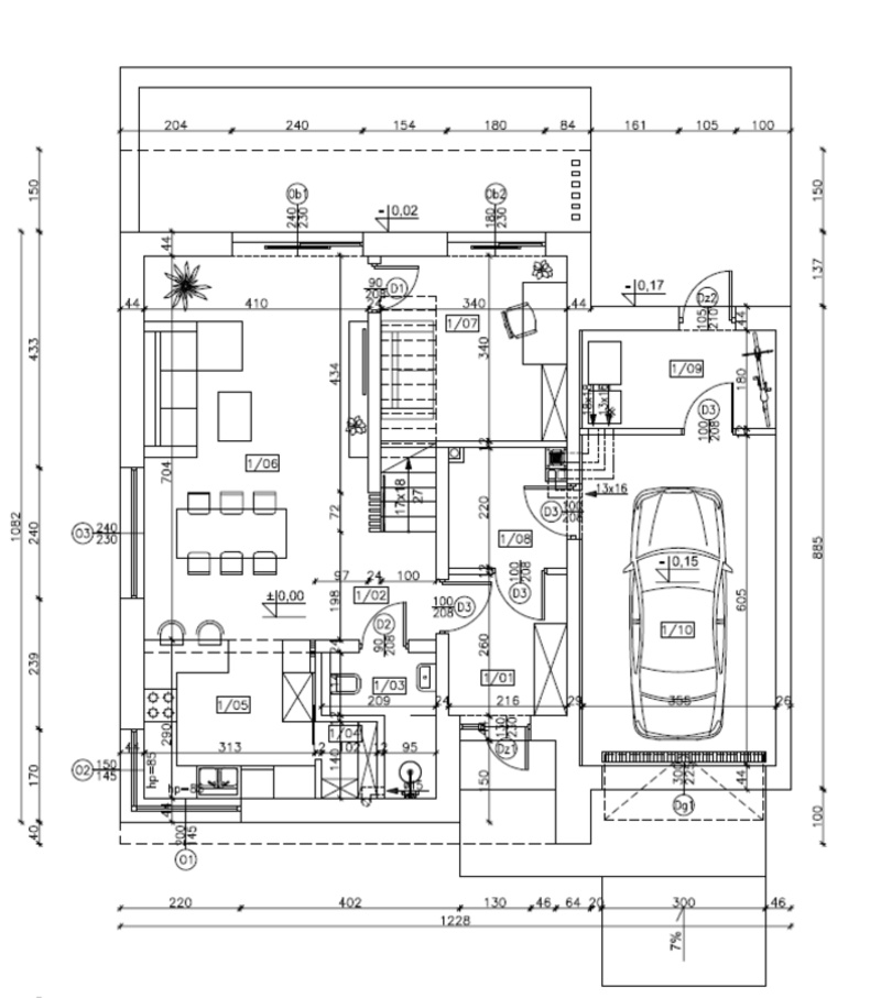
Domy połączone są jedynie poprzez garaże. Całkowita powierzchnia podłóg pojedynczego domu wynosi 174m2, natomiast powierzchnia użytkowa to 131m2. Usytuowane są na działkach o powierzchni od 440 do 650m2. Każda nieruchomość posiada niezależny wjazd na posesję, przyłącze wodociągowe, przyłącze energii oraz przyłącze kanalizacyjne. Przy drodze gminnej jest sieć światłowodowa oraz oświetlenie uliczne.
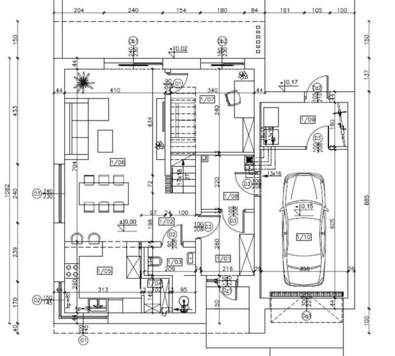
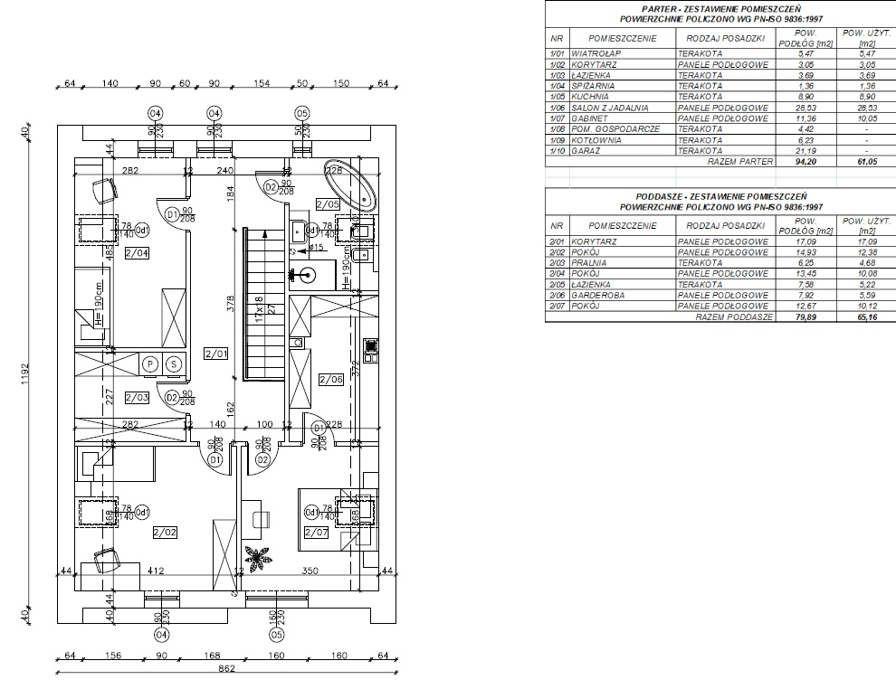
[Parter]:
– przestronny salon z jadalnią; funkcjonalna kuchnia ze spiżarnią; łazienka z prysznicem;
gabinet lub dodatkowa sypialnia; wiatrołap; duży garaż; kotłownia
[Piętro]:
– sypialnia z garderobą; 2 x sypialnia; pralnia; przestronna łazienka z wanną i prysznicem
Właściwości/ parametry
Fundamenty:
wykonane w całości z żelbetonu (ławy +ściany). Ściana fundamentowa od samej ławy zaizolowana jest XPS-em gr. 10cm.
Ściany zewnętrzne:
ściany nośne wymurowane z betonu komórkowego h+h gr.24cm. Trzpienie konstrukcyjne, schody oraz strop nad parterem wykonane w technologii żelbetowej monolitycznej z betonu C20/25. Ocieplenie ścian zewnętrznych to 20cm styropian grafitowy (lambda 0,31W/mK) + elewacja zewnętrzna wykonana produktami marki Mapei.
stropodach wykonany w technologii żelbetowej monolitycznej. ”Lane skosy” eliminują konieczność robienia ”suchej zabudowy”. Wszystkie skośne ściany na poddaszu są gotowe i otynkowane. Ściana kolankowa ma wysokość 140cm, co przekłada się na dużą przestrzeń użytkową poddasza. Jedną z wielu zalet stropodachu jest akumulacja chłodu w porze letniej, ciepła w porze zimowej oraz znaczne wygłuszenie poddasza.
Dach:
izolacja dachu to 25cm wełny mineralnej. Poszycie wykonane z blachodachówki marki Budmat.
W każdym pomieszczeniu na piętrze jest okno dachowe (z ciepłą ramką) co przekłada się na świetne doświetlenie
Stolarka:
brama garażowa segmentowa sterowana pilotem, napęd Bennica. Okna 3 szybowe, ciepła ramka dla szyb, profil okienny 81mm;7komorowe;3uszczelki ; Uw<0,8W/m2K; Ciepły montaż okien na taśmy rozprężne + ciepły parapet. Drzwi wejściowe i ogrodowe marki Wikęd.
Tynki:
gipsowo-wapienne w pomieszczeniach suchych oraz cementowo- wapienne w łazienkach, garażu i kotłowni.
Instalacje sanitarne:
w całym domu zainstalowano ogrzewanie podłogowe, które tak jak elementy c.w.u. wykonane są w całości z komponentów firmy kan-therm. Docelowym źródłem ogrzewania jest pompa ciepła typu split Immergas z dużym buforem i zasobnikiem c.w.u. Dodatkowo wybudowany został komin spalinowy do ewentualnego podłączenia drugiego źródła ciepła na paliwo stałe np.” kocioł na biomasę”
Ogrodzenie:
wszystkie działki wydzielone ogrodzeniem panelowym, natomiast od frontu aluminiowa brama wjazdowa furtka z. Podjazd i opaska wokół domu będą utwardzone, natomiast teren zielony wyrównany i zagospodarowany pod przyszły trawnik.
Instalacje wewnętrzne:
rozbudowana instalacja elektryczna. Instalacja Ethernetowa i SAT do każdego pokoju jest dociągnięta skrętka internetowa, oraz przewód koncentryczny. Rozłożone jest również okablowanie pod system alarmowy, video-domofon oraz sterowanie strefowe ogrzewaniem podłogowym.
Możliwość wykończenia domu pod klucz wg indywidualnych ustaleń nabywcy. Posiadamy własnych fachowców w wielu dziedzinach. Według zapotrzebowania możemy wykonać np. instalację fotowoltaiczną z magazynem energii, stacje ładowania do aut elektrycznych, wentylację mechaniczną, rozbudowany system alarmowy i wiele, wiele innych.
Lokalizacja
W okolicy dominuje zabudowa jednorodzinna. Domy usytuowane są przy lokalnej drodze gminnej. W odległości 1,5 km znajduje się Urząd Gminy, oraz szkoła podstawowa.
Do najbliższego przystanku autobusowego jest 200m. Dojazd do galerii Echo zajmuje 10min.
Ogłoszenie bezpośrednio od właściciela. Mieszkanie w spokojnej, zielonej okolicy. Niski…
$344,600
Syndyk Masy Upadłości Wojdyła Nieruchomości Sp. z o.o. z siedzibą…
$401,000
Owning a home is a keystone of wealth… both financial affluence and emotional security.
Suze Orman