Dom, który daje przestrzeń, gotowy do zamieszkania
Na sprzedaż nowoczesny, skrajny dom w zabudowie szeregowej o powierzchni…
$1,490,000
mazowieckie, Kobyłka, Mareta
sprzedaż
$1,099,000

















Na sprzedaż wyjątkowy skrajny segment w Kobyłce (Mareta), położony na cichym, zamkniętym i monitorowanym osiedlu, ukrytym od ulicy — zapewniającym pełną prywatność oraz spokój.
Dom został wykończony w wysokim standardzie: beton architektoniczny, elementy drewna, matowe wykończenia.
"Wszystkie meble oraz pełne wyposażenie AGD pozostają w cenie."
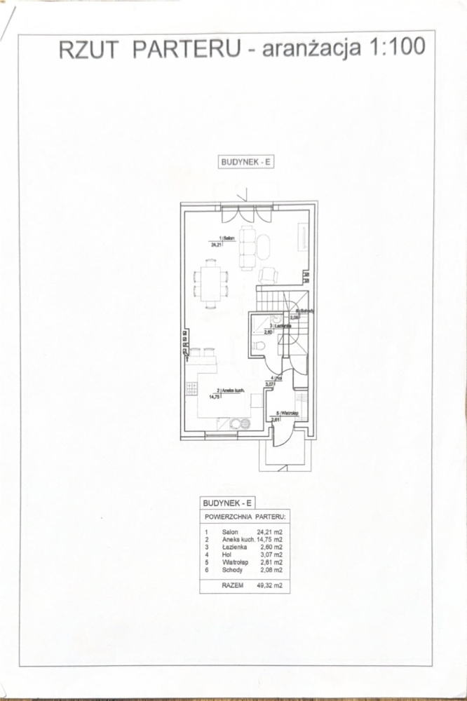
PARTER- 50m2
• Przestronny salon z aneksem kuchennym oraz wyjściem do ogrodu
• Aneks kuchenny w oliwkowo-szarej zabudowie, pełne AGD
• Schowek
• Łazienka z prysznicem
• Wiatrołap
• Ogrzewanie podłogowe na całej powierzchni.
Schody i korytarz beton architektoniczny
PIĘTRO;
• Trzy jasne sypialnie z oknami do podłogi
• Główna sypialnia: duży balkon i garderoba; beton architektoniczny
• Łazienka premium: styl marmur + kamień, podświetlenie LED , dwie umywalki, duże lustro, bidet, złota armatura, ukryte drzwi
• Ogrzewanie podłogowe w łazience i korytarzu,grzejniki w pokojach.
PODDASZE –gotowe do adaptacji
• Pełne schody betonowe prowadzące na górę (nie są to schody strychowe)
• Wyprowadzone instalacje wodno-kanalizacyjne
• Grzejniki
• Dwa okna dachowe (możliwość dodania kolejnych)
Idealne miejsce na:
• strefę relaksu,
• gabinet,
• dwie sypialnie oraz pralnię – zależnie od potrzeb.
OGRÓD -ok. 70 m2
• Ogród z tyłu i z boku budynku
• Tuje i trawnik-przestrzeń na wypoczynek i grill
PARKING;
• Dwa miejsca postojowe przed budynkiem
LOKALIZACJA;
• Ok. 200 metrów do lasu i ścieżek rowerowych
• Blisko szkoły, sklepy, punkty usługowe
•W domu istnieje możliwość wykonania kominka.
•Spokojni i wyrozumiali sąsiedzi — Okolica jest naprawdę bardzo spokojna.
• Szybki dojazd do Warszawy dzięki trasie S8
Dom gotowy do zamieszkania.
Zapraszam do kontaktu w celu uzyskania dodatkowych informacji oraz umówienia się na prezentację!
" Niniejsze ogłoszenie nie stanowi oferty w rozumieniu Kodeksu Cywilnego, lecz ma charakter informacyjny."
Na sprzedaż nowoczesny, skrajny dom w zabudowie szeregowej o powierzchni…
$1,490,000
Oferujemy wyjątkowe siedlisko w malowniczej miejscowości Lipowo Kurkowskie, które stanie…
$4,500,000
Owning a home is a keystone of wealth… both financial affluence and emotional security.
Suze Orman