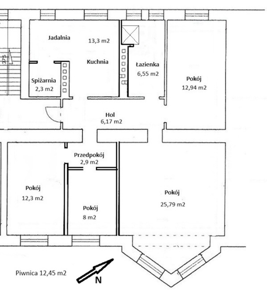
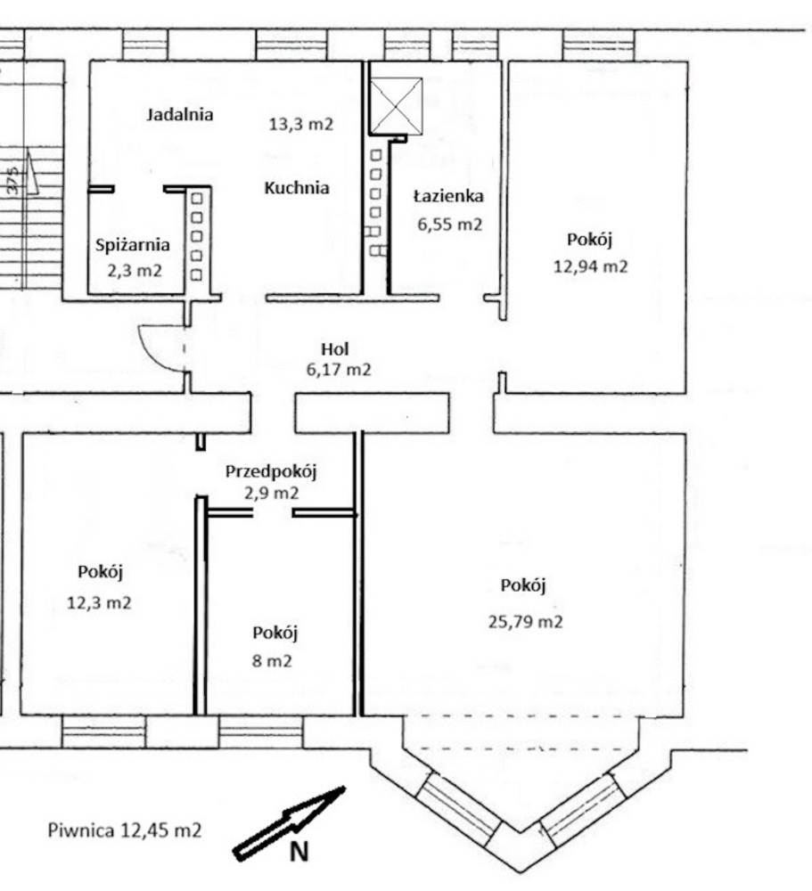
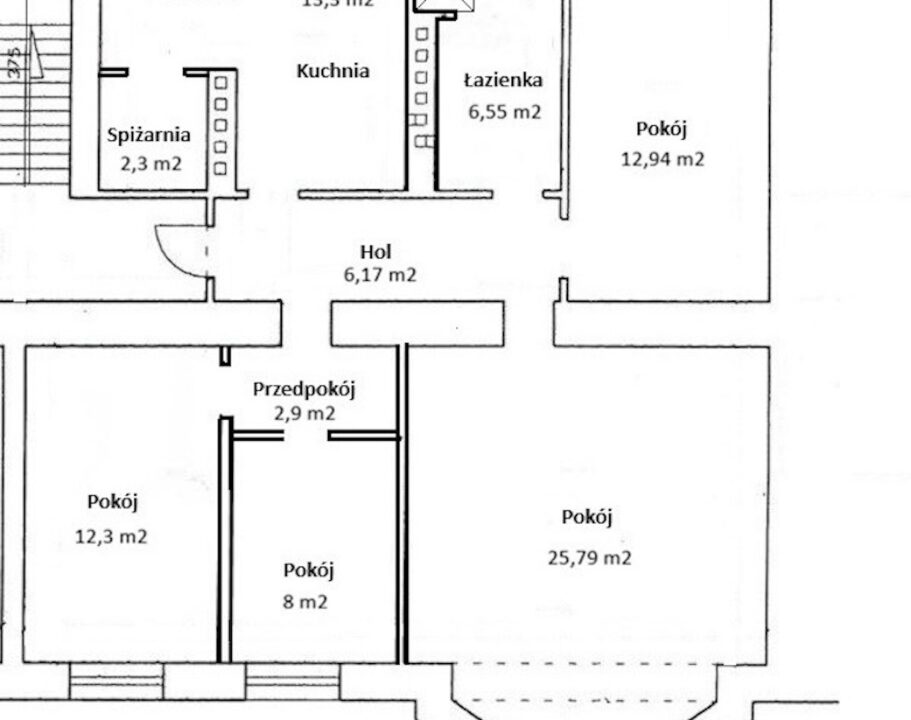
Compare Properties
Compare
You can only compare 4 properties, any new property added will replace the first one from the comparison.
Owning a home is a keystone of wealth… both financial affluence and emotional security.
Suze Orman
16 marca, 2026
poniedziałek!
Housebox
Login
Username
Password
Forget Password?
Login
Reset Password
Kontakt:798028084