Katowice, 4 pokojowe mieszkanie, bez pośredników
Mieszkanie o pow. całkowitej : 70,18 m2 , pow. mieszkalna.:…
$629,000
małopolskie, Proszowice,
sprzedaż
$495,000





#nowydom #sprzedam #proszowice
Nowoczesny Dom Jednorodzinny w Proszowicach – Bez Prowizji! Bezpośrednio od Właściciela, stan surowy otwarty
Marzysz o własnym domu w cichej i spokojnej okolicy, z dala od miejskiego zgiełku, ale blisko pełnej infrastruktury? Ta oferta jest dla Ciebie!
Oferujemy przestronny i nowoczesny dom jednorodzinny z użytkowym poddaszem i garażem, położony na działce o powierzchni około 5,8 ara w Proszowicach, przy ul. Słonecznej.
Dlaczego ten dom jest idealny?
Funkcjonalny układ pomieszczeń: Przestronny salon z jadalnią, jasna kuchnia, spiżarnia, 4 sypialnie, 2 łazienki, garderoba i pomieszczenie gospodarcze – wszystko zaprojektowane z myślą o komforcie rodziny.
Ogrzewanie pompą ciepła: ekologiczne i ekonomiczne rozwiązanie, zaplanowane już na etapie budowy.
Nowoczesna bryła: Atrakcyjny projekt, który łączy estetykę z funkcjonalnością.
Garaż w bryle budynku: 19,97 m² – idealne miejsce na samochód i dodatkowe przechowywanie.
Cisza i spokój: Kameralna okolica domów jednorodzinnych, z dogodnym dojazdem i szybkim dostępem do sklepów, szkoły czy usług.
Szczegółowy rozkład pomieszczeń:
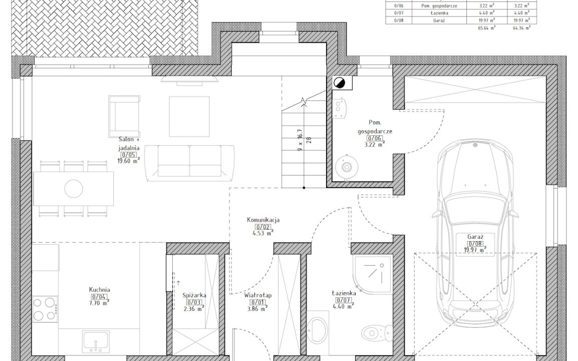
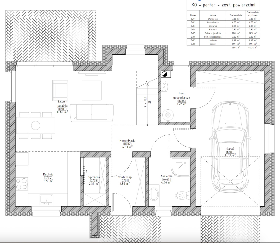
Parter:
Wiatrołap: 3,86 m²
Komunikacja: 4,53 m²
Spiżarka: 2,36 m²
Kuchnia: 7,70 m²
Salon z jadalnią: 19,60 m²
Pomieszczenie gospodarcze: 3,22 m²
Łazienka: 4,40 m²
Garaż: 19,97 m²
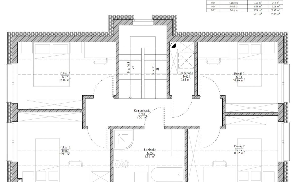
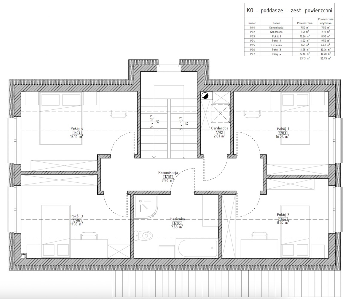
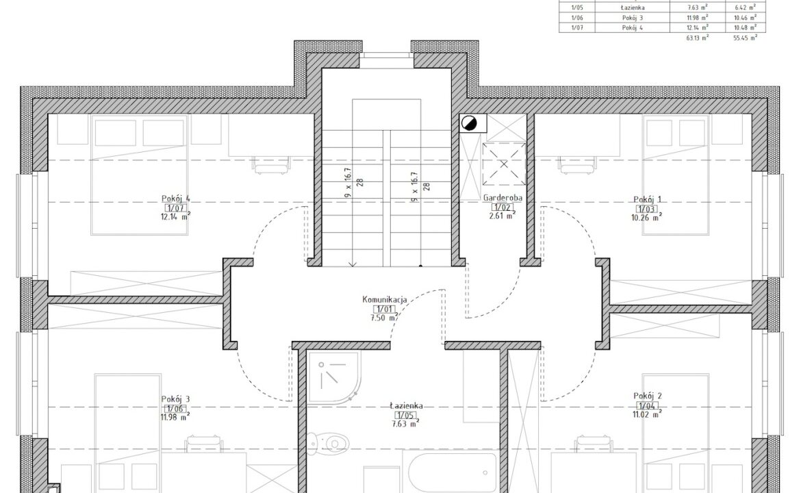
Poddasze:
Komunikacja: 7,50 m²
Garderoba: 2,61 m²
Pokój 1: 10,26 m²
Pokój 2: 11,02 m²
Pokój 3: 11,98 m²
Pokój 4: 12,14 m²
Łazienka: 7,63 m²
Szczegóły inwestycji:
Stan surowy otwarty: Możesz samodzielnie zaprojektować wnętrze zgodnie ze swoimi potrzebami.
Z inwestycji dostępny jest tylko dom nr 2, pozostałe zostały już sprzedane.
Bez prowizji! Bez pośredników!
Nie czekaj – zrealizuj swoje marzenie o nowoczesnym i wygodnym domu, idealnym dla Twojej rodziny! Zadzwoń już teraz i zarezerwuj termin prezentacji, zanim ktoś Cię uprzedzi.
Nie przegap tej wyjątkowej okazji – idealny dom w Proszowicach czeka na Ciebie!
Mieszkanie o pow. całkowitej : 70,18 m2 , pow. mieszkalna.:…
$629,000
Borucin obok raciborza, 5 pokoi dzialka 370m ogrodzona. media w…
$124,000
Owning a home is a keystone of wealth… both financial affluence and emotional security.
Suze Orman