Wynajmę budynek 391m² Mrągowo Giżycka 9500zł/mc
UDYNEK HANDLOWO-BIUROWY Z MIESZKANIEM 391m² MRĄGOWO UL. GIŻYCKA 9 –…
$9,500
małopolskie, Kraków, Podgórze
wynajem
$1,800









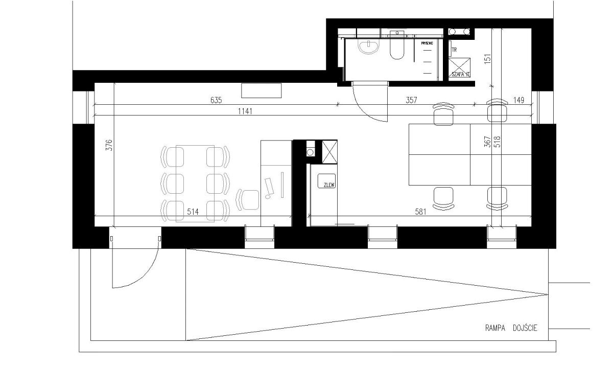
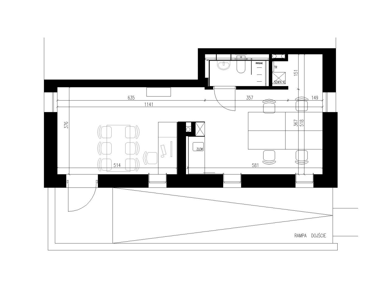
Funkcjonalny i komfortowy lokal idealny pod działalność biurową, projektową, IT, gabinet, studio lub inną nieuciążliwą działalność gospodarczą.
Lokal położony jest w przyziemiu budynku wielorodzinnego z bezpośrednim wejściem z ulicy oraz przestrzeni publicznej, w otoczeniu zieleni miejskiej.
Najważniejsze atuty nieruchomości
Po generalnym remoncie – nowe instalacje sanitarne, elektryczne i grzewcze
Nowe posadzki z izolacją, ściany i sufity, nowe okna i drzwi wejściowe
Wysokość pomieszczeń: 252 cm – przestrzeń wygodna szysto i elegancko
Lokal suchy, bez wilgoci
Stała temperatura ok. 20°C latem (ekspozycja północna) – bez potrzeby klimatyzacji
Niskie koszty utrzymania – ok. 400 zł/mies.
Funkcjonalny układ
2 niezależne pomieszczenia użytkowe
Toaleta
Aneks gospodarczy i kuchenny
Okna na północ, zachód i wschód
Wygodne dojście zewnętrzną rampą
Wyposażenie w cenie
Wbudowane meble ze sklejki wodoodpornej
Designerskie oświetlenie Aquaform
Armatura i sanitariaty Grohe
Szyby antywłamaniowe klasy P2
Technologia i bezpieczeństwo:
Nowa instalacja oświetleniowa
System alarmowy
Okablowanie LAN do 7 stanowisk komputerowych
Szafa rack + switch + skonfigurowana sieć wewnętrzna
Dostęp do światłowodu / sieci 5G
Możliwość rozbudowy o CCTV i TV
Przyłącze energi – Taron taryfa C12a – 10kW
Lokalizacja – absolutny TOP
ul. Ignacego Krasickiego 21, Kraków – Podgórze
Rondo Matecznego – 300 m
Bulwary Wiślane – 500 m
Rynek Podgórski – 8 minut
Świetna komunikacja i prestiżowa okolica w centrum miasta.
Informacje prawne
Lokalu użytkowy wynajmuje bezposrednio własciciel nieruchomosci, brak możliwości meldunkwocyh w lokalu
Lokal wolny od wad prawnych i technicznych
Cena brutto, możliwość odliczenia VAT (23%) Cena najmu do negocjacji
Opłaty stałe czynsz okolo 540 zł/miesiac ( Co,Woda,Fundusz Remontowy ) , Tauron taryfa C12A -10kW
Szczegółowe informacje oraz dodatkowe zdjęcia udostępnię telefonicznie [numer] .
Oględziny możliwe – termin do uzgodnienia.
ul. Ignacego Krasickiego 21, Kraków Podgórze
Oferta dodana bezpośrednio przez właściciela.
UDYNEK HANDLOWO-BIUROWY Z MIESZKANIEM 391m² MRĄGOWO UL. GIŻYCKA 9 –…
$9,500
Dom przekształcony na biuro, adres Dominikańska 25a Mokotów, kilka minut…
$35,000
Owning a home is a keystone of wealth… both financial affluence and emotional security.
Suze Orman